Interieur- Architectuur
DESIGNIUM brengt de noodzakelijke balans in creatief, spraakmakend interieurontwerp en bouwkundige haalbaarheid. Materiaaltoepassing, kleuropbouw en verlichting, samenbrengen tot de gewenste ruimte beleving, zoals we dit, al decennia, binnen het bereik van velen hebben gebracht. Wij begeleiden u graag bij het ontwerpen en realiseren van uw nieuwe omgeving, uw leefruimte, geheel afgestemd op uw wensen en mogelijkheden.
Onderwerpen:
- Interieurs in ‘ruime’ zin... of op de vierkante centimeter..
- Herindelen / Restylen
- Advies & Begeleiding
- Uitbreiden / herindelen
- Herbestemmen bestaande panden
- Project-management
Interieurs in ‘ruime’ zin, zoals hieronder…

Double splitlevel-interieur voor de XL woonunit in de westelijke sectie ons 'Parklplan', als onderdeel van onze opdracht ter ontwikkelen van totaal zeven ultra luxe woonunits op Landgoed Eemwijk te Voorburg. De ontwikkeling werd gerealiseerd in samenwerking met specialsten binnen ons netwerk.
Westelijke sectie van ons 'Parkplan' project op Landgoed Eemwijk, bestaande uit vier woon-eenheden met grote dakterrassen, eigen jachthaven en grote ondergrondse parking.
Dus interieurs in ‘ruime’ zin, zoals hierboven…
..... of letterlijk werken op de ‘vierkante centimeter’ zoals hieronder....
'Puzzelen en interpreteren van oude bouwtekeningen'
'Omgaan met minimale ruimten'
'Soms een spiltrap als ultieme ruimte winner'
Herindelen / Restylen
Volledige herindeling/restyle van een herenhuis te Zeist, met bijvoorbeeld de realisatie van een toogentree in voormalige bouwkundige kast, naar de dubbele living.
Bestaande entree deur van overloop op eerste etage, naar de voorste living.....
....de zelfde wand links, nu optisch 'open' d.m.v. inbouwen van een luchtige doorkijk virtinekast..
....en daarachter nu een centrale ruime toogentree in de bestaande bouwkundige kast t.b.v. zowel de voor- als achter-living
TIP....Schuine kap en toch voldoende stahoogte?? Mix van comfort, sfeer en functie...
Multi-functie oplossingen met wanden en belichting...
Zolderkamer TIP Een zolderkamer kenmerkt zich vaak door z'n schuine dakvlakken. Plaatsen van een dakkapel is dan een goede optie, maar plaats je daar een bed, dan ben je gelijk je stahoogte ook al weer kwijt. Plaats daarom het bed diagonaal 'onder' de schuine zijde en daardoor mèt goede stahoogte! Een comfortabele, achterover hellende 'leeswand' levert veel wandruimte op, is optisch speels, met bijvoorbeeld een mogelijkheid voor toepassen van ruimtelijke, indirecte LED. Maak voor practische toepassing een afspraak via de contactpagina.
Advies & Begeleiding
Een ontwerp is pas een goed ontwerp, als ook de haalbaarheid ervan reëel is. In vele situaties dient ook de bouwkundige haalbaarheid grondig gecheckt te worden en zo gewenst begeleiding op locatie besproken te zijn. Het is aanbevelenswaardig, om de ontwerpende partij, als eerste schakel in het realisatieproces, uw specifieke wensen in kaart te laten brengen. Verbouwen is lang niet altijd noodzakelijk en we adviseren dan ook conform die wetenschap. Vanzelfsprekend.
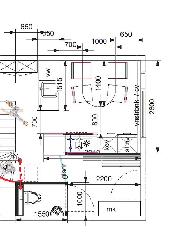
... Uitbreiden / Herindelen
Functie-eiland in appartement te IJsselstein. Oude situatie...
.

Door toepassen van gebogen wanden creerden we op minder dan 2 m2 uitbouw naar de (ruime) living, ruimte voor een extra toilet, een ruime inloopdouche, 170 cm ligbad i.p.v. 145cm, en eengarderobe. Samen met eem tevens gebogen keukenwand een speels eiland vormend...
....
Nieuwe situatie
... Uitbreiden / herindelen...
Ontwerp-opdracht voor uitbreiding/ herindeling en restyle vrijstaande woning bij Nijmegen..
... Definitief ontwerp Master- & Guest room, 1e etage nieuwbouw Erasmuslaan Zeist.

Opdrachtgever: "We hebben een 'lege' eerste etage, geen tussenwanden, wel veel ramen en we willen een unieke, grote master bedroom, ruimtelijk, kleur, warm en verder een twee persoons logeerkamer met eigen badkamer. We laten ons verrassen... en dit is 'ie geworden...
... Side view, realisatie 2010

..en een aanzicht...
ht
.
... vrije impressie / side view image 2017

.....
... Speciale receptiebalies...
Opdracht voor ontwerp/realisatie receptiebalie te Uden. Het bedrijfs logo in 3D werd ons uitgangspunt voor het ontwerp van de balie Éen ruime zit- en idem staplek achter de ontvangst-balie, overlopend naar vier sta/werk-flexplekken op barhoogte.
...de kern van het 'logo' ; een kolom t.b.v. de bekabeling in koningsblauw, indirect aangelicht door gouden reflector .....
ABSC logo
Is verbouw wenselijk of noodzakelijk, dan kan Designium als ontwerpende, bouwkundige en controlerende partij, u met ‘raad en daad’ bijstaan en zogewenst ook in de keuze van uitvoerende partijen. Wij kunnen bouwen op een zeer ruime ervaring en maken in waar nodig gebruik van specialisten in ons netwerk.